【居間・リビング】
-
バストイレ別
-
室内洗濯機置場
-
TVモニタ付きインターホン
-
カウンターキッチン
-
独立洗面台
-
浴室乾燥機
-
オートロック
-
エレベーター
-
ネット使用料無料

リビング
キッチン
風呂
トイレ
玄関- 保証金
- -
- 敷引 / 償却
- - / -
- 敷金積み増し
- ペット飼育:1ヶ月
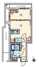
- 間取り / 詳細
- 1LDK
洋室/LDK - 向き
- 北
- 専有面積
- 40.44㎡
- バルコニー
(テラス)面積 - -
- 所在階 / 階建て
- 4階 / 5階建
- 建物構造
- プレキャストコンクリート
- 築年月
- 2026年2月(新築)
- 種別
- 賃貸マンション
- 保険会社 / 料金
- 有 / -
- 保証会社 / 料金
- 必加入 / その他
初回保証料50%~年間保証料1万円 - 現況
- 完成済み
- 入居可能時期
- 即時
- 設備条件
-
- ペット相談 / 保証人不要 / 2人入居可 / 高齢者相談 / 学生相談 / 法人可 / ルームシェア可 / 室内洗濯機置場 / フローリング / 都市ガス / 公営水道 / 公共下水 / エレベーター / 電気有 / 照明器具付き / 駐輪場 / バイク置場あり / 敷地内ごみ置き場 / ガスコンロ / コンロ2口以上 / システムキッチン / コンロ3口 / カウンターキッチン / バス・トイレ別 / 追焚機能浴室 / 浴室乾燥機 / 温水洗浄便座 / シャワー / 独立洗面台 / エアコン / シューズボックス / 光ファイバー / ネット使用料無料 / オートロック / TVモニタ付インターホン / 宅配ボックス / 防犯カメラ / 24時間ゴミ出し可 / エアコン2台 / エアコン全室 / 全室照明付き / 初期費用カード決済可
- 契約期間
- 2年
- 賃貸区分
- 一般
- 更新料
- 1ヶ月(新賃料)
- 更新事務手数料
- -
- 総戸数
- 50戸
- 特優賃
- -
- 取引態様
- 仲介
- 物件番号
- 101568623
- 管理コード
- -
- 情報更新日
- 2026年03月01日
- 次回更新予定日
- 2026年03月15日
- 取扱会社
-
- 株式会社ミレイホーム
- 東京都大田区蒲田4丁目18-27 エリア蒲田 4階
- TEL:03-6424-9464
- 東京都知事 (1) 第109788号
- 備考
- セキュリティ面は、オートロック・TVインターホンなどを備え付けているので安心して暮らせます☆収納はクロゼット・シューズボックスなど豊富なので、広々と空間を利用することも可能です☆移動距離が短くてすむ、敷地内ごみ置き場です☆交通アクセスの充実した住まいをお求めなら、京急空港線穴守稲荷周辺でお部屋探しをしてはいかがでしょう☆きっとお客様のライフスタイルに合った暮らしが可能です(^^)
-
居酒屋
さくら
79m(1分)
-
スーパー
スーパーマーケット リコス 羽田1丁目店
123m(2分)
-
コンビニエンスストア
ローソン 羽田四丁目店
154m(2分)
-
公園
羽田三丁目第二児童公園
168m(3分)
-
公園
羽田三丁目広場児童公園
185m(3分)
-
居酒屋
もつ家大西 羽田店
187m(3分)
-
スーパー
まいばすけっと 穴守稲荷店
209m(3分)
-
コインランドリー
ドルフィンウォッシュ 羽田店
229m(3分)
-
公園
羽田三丁目第三児童公園
258m(4分)
-
コンビニエンスストア
セブンイレブン 大田区羽田店
260m(4分)
-
コンビニエンスストア
セブンイレブン 大田区羽田1丁目店
276m(4分)
-
小学校
大田区立羽田小学校
279m(4分)
-
その他
魚幸
280m(4分)
-
図書館
大田区立羽田図書館
325m(5分)
-
スーパー
FUJI 羽田店
346m(5分)
-
内科
山田医院
362m(5分)
-
ファーストフード
すき家 環八羽田店
452m(6分)
-
そば・うどん
ゆで太郎 大鳥居店
457m(6分)
-
ラーメン
グッドモーニングラーメンショップ
505m(7分)
-
ファーストフード
すき家 大鳥居店
557m(7分)
物件の特徴
セールスポイント
新着情報:羽田六間堀レジデンスの空室情報ならコチラ♪新着情報:羽田六間堀レジデンスの空室情報ならコチラ♪収納はシューズボックス・クロゼットなど豊富なので、衣類や履き物の整理がしやすく便利です♪2026年築の物件です♪ミレイホームがご案内するのが、大田区にある賃貸住宅情報です♪引っ越しを検討しているなら、お部屋探しをサポートさせてください(*´ω`*)
ポイント
当社は総合仲介になりますので他社様掲載のお部屋も全て正確な空室状況をおとりすることが可能です!他社様より安く しっかりと良い新生活になるようお手伝いさせていただきます。お気軽にお問合せください。 ☆大田区 品川区のお部屋探しは経験豊富なミレイホームにお任せください☆
担当者のコメント
パノラマ画像
基本情報
設備条件
その他
羽田六間堀レジデンスの他の部屋
周辺施設
近隣の物件
よく見られている物件
羽田六間堀レジデンス
18.3万円
13,000円
1LDK(40.44㎡)
立石 みどり